Skip to content
+40750278924
Facebook-f
Instagram
Acasa
Proiectare structurala
Consultanta imobiliara
Tarife
Contact
Acasa
Proiectare structurala
Consultanta imobiliara
Tarife
Contact
Acasa
Proiectare structurala
Consultanta imobiliara
Tarife
Contact
Acasa
Proiectare structurala
Consultanta imobiliara
Tarife
Contact
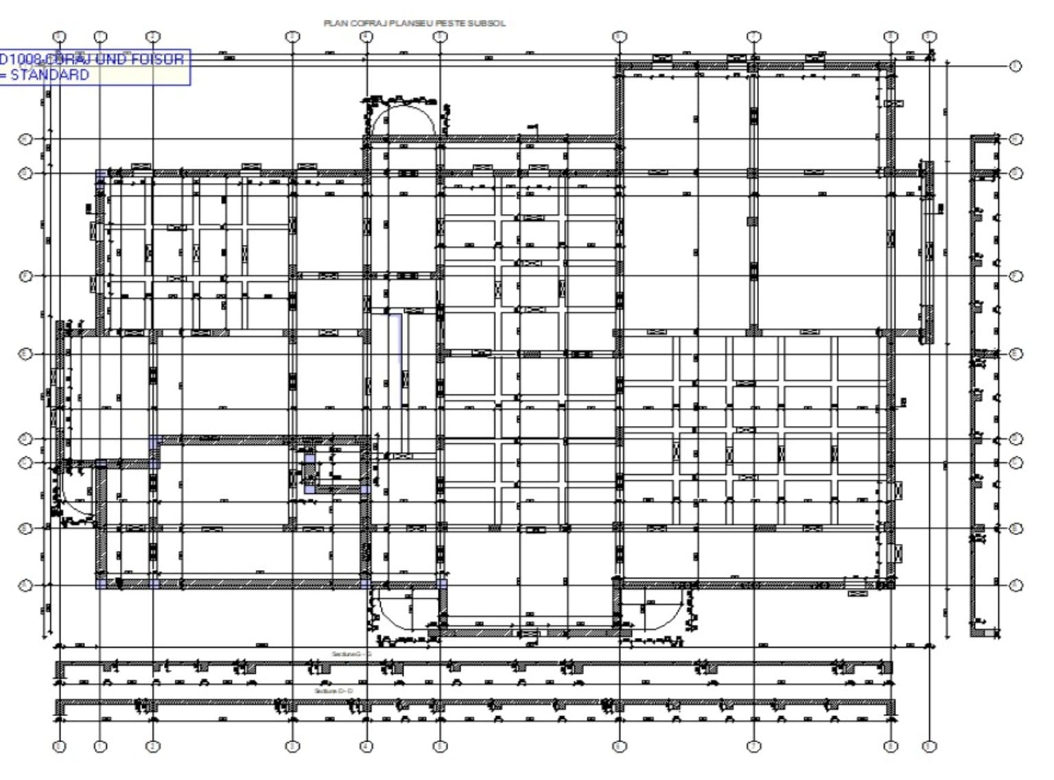
Proiect structura Han Videle
Vedere 3D
Vedere 3D
Fatada
Armare 3D
Armare 3D
Cofraj
WhatsApp us